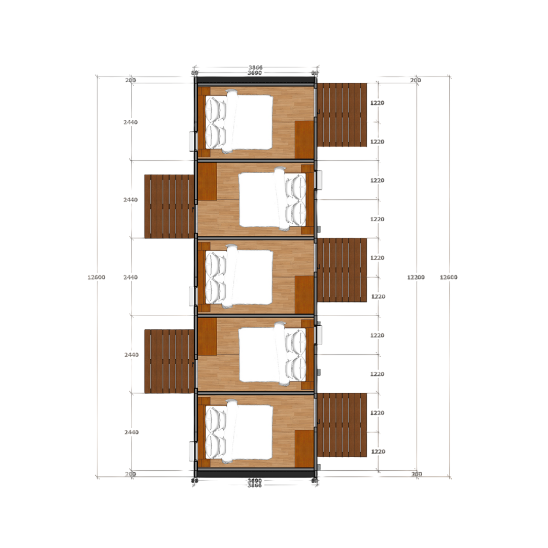
Palm
10 modules - 5 individual rooms
The Palm model offers a versatile living solution with 10 modules, providing a total space of 47,8 square meters. Ideal for multi-room setups and shared accommodations, it is perfectly suited for motels, dormitories, and similar communal living spaces.
Layout
Upload file
Main features
Where design meets functionality
Structure
The main materials that are used in making this house are highest grade CLT (Cross Laminated Timber), Kingspan insulation and Firestone roof membrane. The house perfectly suits as holiday home or a residential dwelling in any climate. Even the tiniest joints are sealed to reduce cold air circulation leaving it to recuperators to exchange air inside. The concept is based on idea of a well designed, functional, modern house.
External Walls
- CLT panels of 3.24 in, visual quality, sanded, treated with light oil
- High performance Kingspan insulation PIR panels 5 inch
- Waterproof and wind barrier membrane
- Ventilation laths
- Thermally treated wood, water repellent oil
Internal Walls
Cross Laminated Timber panels of 3.24 inch, visual quality, sanded, treated with light oil deliver very modern look from a sustainable material.
Roof
- CLT panels of 5.4 inch, visual quality, sanded, treated with light oil
- Vapour barrier
- 12-5 inch Kingspan insulation
- Firestone waterproof membrane
Floor
- Tiles and parquet or concrete as an upgrade
- Floor heating
- Kingspan thermal insulation
- Waterproof membrane
- Covering sheet (against insects and general protection)
Windows
Aluminum windows of triple glazing. High energy efficiency
Grhya Design Kitchen
Custom design kitchen with high quality surfaces, mechanisms and great functionality. Quartz top with design sink and mixer.
Standard appliances included in the offer – two ring cooktop, oven, extractor and a small fridge.
Light
Smart LED installed inside the cuts in CLT along living room, bedroom and toilet. Every house is equipped with smart kinetic switches which you can control with an app.
WC and Shower
Fully equipped and ready to use, design sink, mixer and lights.
Standard Equipment
Grhya is a fully functional Plug and Play solution includes:
- Grhya Design bathroom – shower, toilet sink and mixer
- Grhya Design kitchen
- SMART lighting and heating system
- Standard quality oak boards parquet
- Ready to connect
Perfectly suited for immediate use!
Upgrades are available in upgrade section.
The outer dimensions: 40 ft x 13 ft x 12 ft (length/width/height)
Inner dimensions: 38 ft x 11.5 ft x 9 ft
Total inside area: 430 sqf
Total outside area: 516 sqf
Main features
Sun Bird renewable energy system
We are proud to introduce the new Sun Bird solar PV panel and battery pack system that powers the house. It is specially design to meet our needs to get the best functionality and performance of Grhya house.
PV panels generate 7kW solar energy and store it in 6.5 kWh battery. It’s super compact system that fits in our technical room and is consumer friendly both in design and usage. This is a step closer to off grid living and sustainability.
Structure
The main materials that are used in making this house are highest grade CLT (Cross Laminated Timber), Kingspan insulation and Firestone roof membrane. The house perfectly suits as holiday home or a residential dwelling in any climate. Even the tiniest joints are sealed to reduce cold air circulation leaving it to recuperators to exchange air inside. The concept is based on idea of a well designed, functional, modern house.
External Walls
- CLT panels of 3.24 in, visual quality, sanded, treated with light oil
- High performance Kingspan insulation PIR panels 5 inch
- Waterproof and wind barrier membrane
- Ventilation laths
- Thermally treated wood, water repellent oil
Internal Walls
Cross Laminated Timber panels of 3.24 inch, visual quality, sanded, treated with light oil deliver very modern look from a sustainable material.
Roof
- CLT panels of 5.4 inch, visual quality, sanded, treated with light oil
- Vapour barrier
- 12-5 inch Kingspan insulation
- Firestone waterproof membrane
Floor
- Tiles and parquet or concrete as an upgrade
- Floor heating
- Kingspan thermal insulation
- Waterproof membrane
- Covering sheet (against insects and general protection)
Windows
Aluminum windows of triple glazing. High energy efficiency
Grhya Design Kitchen
Custom design kitchen with high quality surfaces, mechanisms and great functionality. Quartz top with design sink and mixer.
Standard appliances included in the offer – two ring cooktop, oven, extractor and a small fridge.
Light
Smart LED installed inside the cuts in CLT along living room, bedroom and toilet. Every house is equipped with smart kinetic switches which you can control with an app.
WC and Shower
Fully equipped and ready to use, design sink, mixer and lights.
Standard Equipment
Grhya is a fully functional Plug and Play solution includes:
- Sun Bird full solar energy system
- Grhya Design bathroom – shower, toilet sink and mixer
- Grhya Design kitchen
- SMART lighting and heating system
- Standard quality oak boards parquet
- Ready to connect
Perfectly suited for immediate use!
Upgrades are available in upgrade section.
The outer dimensions: 40 ft x 13 ft x 12 ft (length/width/height)
Inner dimensions: 38 ft x 11.5 ft x 9 ft
Total inside area: 430 sqf
Total outside area: 516 sqf
Additional Module - Optional
Reguler Module
Facades
Plan
Area: 16,47 m2
Length x width: 3,7m x 4,5m
Room height: 3m
Weight: 1,5 ton
Comprised of 3 modules, with a total living space of 16,5 square meters, Coral is perfect for simple accommodation, akin to an entry-level hotel room with all the necessary comforts and facilities, including a bathroom.
Modules with window
Facades
Plan
Area: 16,47 m2
Length x width: 3,7m x 4,5m
Room height: 3m
Weight: 1,5 ton
Comprised of 3 modules, with a total living space of 16,5 square meters, Coral is perfect for simple accommodation, akin to an entry-level hotel room with all the necessary comforts and facilities, including a bathroom.
6 Modules
Facades
Plan
Area: 16,47 m2
Length x width: 3,7m x 4,5m
Room height: 3m
Weight: 1,5 ton
Comprised of 3 modules, with a total living space of 16,5 square meters, Coral is perfect for simple accommodation, akin to an entry-level hotel room with all the necessary comforts and facilities, including a bathroom.
Interior
Exterior
FRONT FACADE
Alternative 1
To stand out even more with a slick facade design from the architect. Original architects vision of the facade adds large pieces of coated aluminium:
Each Plan has its own original design with:
- Metal elements unifying the top and the bottom metal strips.
- Metal elements around windows.
Plan A

Plan B

Plan C

Plan D

Alternative 2
To stand out even more with a slick facade design from the architect. Original architects vision of the facade adds large pieces of coated aluminium:
Each Plan has its own original design with:
- Metal elements unifying the top and the bottom metal strips.
- Metal elements around windows.
Plan A

Plan B

Plan C

Plan D

Alternative 3
To stand out even more with a slick facade design from the architect. Original architects vision of the facade adds large pieces of coated aluminium:
Each Plan has its own original design with:
- Metal elements unifying the top and the bottom metal strips.
- Metal elements around windows.
Plan A

Plan B

Plan C

Plan D

Alternative 4
To stand out even more with a slick facade design from the architect. Original architects vision of the facade adds large pieces of coated aluminium:
Each Plan has its own original design with:
- Metal elements unifying the top and the bottom metal strips.
- Metal elements around windows.
Plan A

Plan B

Plan C

Plan D

Alternative 4
To stand out even more with a slick facade design from the architect. Original architects vision of the facade adds large pieces of coated aluminium:
Each Plan has its own original design with:
- Metal elements unifying the top and the bottom metal strips.
- Metal elements around windows.
Plan A

Plan B

Plan C

Plan D

COLOR
Choose your color
Accessories
Bed + headboard 9.000.000
Bed + headboard
It’s not just an extra work space in your kitchen. It’s an elegant tool to fit and hide more items, an included trash-bin as an example and optional dishwasher.
It also serves as a table for three people to fit.
Elegant addition to the functionality of the kitchen space.

Bed + headboard
It’s not just an extra work space in your kitchen. It’s an elegant tool to fit and hide more items, an included trash-bin as an example and optional dishwasher.
It also serves as a table for three people to fit.
Elegant addition to the functionality of the kitchen space.

Bed + headboard
It’s not just an extra work space in your kitchen. It’s an elegant tool to fit and hide more items, an included trash-bin as an example and optional dishwasher.
It also serves as a table for three people to fit.
Elegant addition to the functionality of the kitchen space.

Bed + headboard
It’s not just an extra work space in your kitchen. It’s an elegant tool to fit and hide more items, an included trash-bin as an example and optional dishwasher.
It also serves as a table for three people to fit.
Elegant addition to the functionality of the kitchen space.

Bed + headboard
It’s not just an extra work space in your kitchen. It’s an elegant tool to fit and hide more items, an included trash-bin as an example and optional dishwasher.
It also serves as a table for three people to fit.
Elegant addition to the functionality of the kitchen space.

Bed + headboard
It’s not just an extra work space in your kitchen. It’s an elegant tool to fit and hide more items, an included trash-bin as an example and optional dishwasher.
It also serves as a table for three people to fit.
Elegant addition to the functionality of the kitchen space.

Kitchen set 19.000.000
Kitchen Set
Premium quality oak board parquet.
Smooth waxed oak boards will last longer and are easy to maintain. This is a great addition to make the already good looking interior even better.
Kitchen Set
Premium quality oak board parquet.
Smooth waxed oak boards will last longer and are easy to maintain. This is a great addition to make the already good looking interior even better.
Top Kitchen Cabinet
Premium quality oak board parquet.
Smooth waxed oak boards will last longer and are easy to maintain. This is a great addition to make the already good looking interior even better.
Top Kitchen Cabinet
Premium quality oak board parquet.
Smooth waxed oak boards will last longer and are easy to maintain. This is a great addition to make the already good looking interior even better.
Top Kitchen Cabinet
Premium quality oak board parquet.
Smooth waxed oak boards will last longer and are easy to maintain. This is a great addition to make the already good looking interior even better.
Top Kitchen Cabinet
Premium quality oak board parquet.
Smooth waxed oak boards will last longer and are easy to maintain. This is a great addition to make the already good looking interior even better.
Top kitchen cabinet 6.000.000
Kitchen Set
Premium quality oak board parquet.
Smooth waxed oak boards will last longer and are easy to maintain. This is a great addition to make the already good looking interior even better.
Kitchen Set
Premium quality oak board parquet.
Smooth waxed oak boards will last longer and are easy to maintain. This is a great addition to make the already good looking interior even better.
Top Kitchen Cabinet
Premium quality oak board parquet.
Smooth waxed oak boards will last longer and are easy to maintain. This is a great addition to make the already good looking interior even better.
Top Kitchen Cabinet
Premium quality oak board parquet.
Smooth waxed oak boards will last longer and are easy to maintain. This is a great addition to make the already good looking interior even better.
Top Kitchen Cabinet
Premium quality oak board parquet.
Smooth waxed oak boards will last longer and are easy to maintain. This is a great addition to make the already good looking interior even better.
Top Kitchen Cabinet
Premium quality oak board parquet.
Smooth waxed oak boards will last longer and are easy to maintain. This is a great addition to make the already good looking interior even better.
Wardrobe 9.000.000
Kitchen Set
Premium quality oak board parquet.
Smooth waxed oak boards will last longer and are easy to maintain. This is a great addition to make the already good looking interior even better.
Kitchen Set
Premium quality oak board parquet.
Smooth waxed oak boards will last longer and are easy to maintain. This is a great addition to make the already good looking interior even better.
Top Kitchen Cabinet
Premium quality oak board parquet.
Smooth waxed oak boards will last longer and are easy to maintain. This is a great addition to make the already good looking interior even better.
Top Kitchen Cabinet
Premium quality oak board parquet.
Smooth waxed oak boards will last longer and are easy to maintain. This is a great addition to make the already good looking interior even better.
Top Kitchen Cabinet
Premium quality oak board parquet.
Smooth waxed oak boards will last longer and are easy to maintain. This is a great addition to make the already good looking interior even better.
Top Kitchen Cabinet
Premium quality oak board parquet.
Smooth waxed oak boards will last longer and are easy to maintain. This is a great addition to make the already good looking interior even better.
Overhead Bed Cabinet 6.000.000
Kitchen Set
Premium quality oak board parquet.
Smooth waxed oak boards will last longer and are easy to maintain. This is a great addition to make the already good looking interior even better.
Kitchen Set
Premium quality oak board parquet.
Smooth waxed oak boards will last longer and are easy to maintain. This is a great addition to make the already good looking interior even better.
Top Kitchen Cabinet
Premium quality oak board parquet.
Smooth waxed oak boards will last longer and are easy to maintain. This is a great addition to make the already good looking interior even better.
Top Kitchen Cabinet
Premium quality oak board parquet.
Smooth waxed oak boards will last longer and are easy to maintain. This is a great addition to make the already good looking interior even better.
Top Kitchen Cabinet
Premium quality oak board parquet.
Smooth waxed oak boards will last longer and are easy to maintain. This is a great addition to make the already good looking interior even better.
Top Kitchen Cabinet
Premium quality oak board parquet.
Smooth waxed oak boards will last longer and are easy to maintain. This is a great addition to make the already good looking interior even better.
Terrace Deck 8.000.000
Kitchen Set
Premium quality oak board parquet.
Smooth waxed oak boards will last longer and are easy to maintain. This is a great addition to make the already good looking interior even better.
Kitchen Set
Premium quality oak board parquet.
Smooth waxed oak boards will last longer and are easy to maintain. This is a great addition to make the already good looking interior even better.
Top Kitchen Cabinet
Premium quality oak board parquet.
Smooth waxed oak boards will last longer and are easy to maintain. This is a great addition to make the already good looking interior even better.
Top Kitchen Cabinet
Premium quality oak board parquet.
Smooth waxed oak boards will last longer and are easy to maintain. This is a great addition to make the already good looking interior even better.
Top Kitchen Cabinet
Premium quality oak board parquet.
Smooth waxed oak boards will last longer and are easy to maintain. This is a great addition to make the already good looking interior even better.
Top Kitchen Cabinet
Premium quality oak board parquet.
Smooth waxed oak boards will last longer and are easy to maintain. This is a great addition to make the already good looking interior even better.
On request
Rain catchment system
Plan A

Composting toilet
Plan C

Plan D
Order Total
Additional Module - Optional
Reguler mode
Facades

Plan
The outer dimensions: 40 ft x 13 ft x 12 ft (length/width/height)
Inner dimensions: 38 ft x 11.5 ft x 9 ft
Total inside area: 430 sqf
Total outside area: 516 sqf
Furniture in the plan serves as a reference. To upgrade model with several features go to upgrade section in the configurator.
Module with window
Facades

Plan
The outer dimensions: 40 ft x 13 ft x 12 ft (length/width/height)
Inner dimensions: 38 ft x 11.5 ft x 9 ft
Total inside area: 430 sqf
Total outside area: 516 sqf
Furniture in the plan serves as a reference. To upgrade model with several features go to upgrade section in the configurator.
Module with bathroom & water heater
Facades

Plan
The outer dimensions: 40 ft x 13 ft x 12 ft (length/width/height)
Inner dimensions: 38 ft x 11.5 ft x 9 ft
Total inside area: 430 sqf
Total outside area: 516 sqf
Furniture in the plan serves as a reference. To upgrade model with several features go to upgrade section in the configurator.
Interior
Exterior
FRONT FACADE
Alternative 1
To stand out even more with a slick facade design from the architect. Original architects vision of the facade adds large pieces of coated aluminium:
Each Plan has its own original design with:
- Metal elements unifying the top and the bottom metal strips.
- Metal elements around windows.
Plan A

Plan B

Plan C

Plan D

Alternative 2
To stand out even more with a slick facade design from the architect. Original architects vision of the facade adds large pieces of coated aluminium:
Each Plan has its own original design with:
- Metal elements unifying the top and the bottom metal strips.
- Metal elements around windows.
Plan A

Plan B

Plan C

Plan D

Alternative 3
To stand out even more with a slick facade design from the architect. Original architects vision of the facade adds large pieces of coated aluminium:
Each Plan has its own original design with:
- Metal elements unifying the top and the bottom metal strips.
- Metal elements around windows.
Plan A

Plan B

Plan C

Plan D

Alternative 4
To stand out even more with a slick facade design from the architect. Original architects vision of the facade adds large pieces of coated aluminium:
Each Plan has its own original design with:
- Metal elements unifying the top and the bottom metal strips.
- Metal elements around windows.
Plan A

Plan B

Plan C

Plan D

Accessories
Bed + headboard 9.000.000
Bed + headboard
It’s not just an extra work space in your kitchen. It’s an elegant tool to fit and hide more items, an included trash-bin as an example and optional dishwasher.
It also serves as a table for three people to fit.
Elegant addition to the functionality of the kitchen space.

Bed + headboard
It’s not just an extra work space in your kitchen. It’s an elegant tool to fit and hide more items, an included trash-bin as an example and optional dishwasher.
It also serves as a table for three people to fit.
Elegant addition to the functionality of the kitchen space.

Bed + headboard
It’s not just an extra work space in your kitchen. It’s an elegant tool to fit and hide more items, an included trash-bin as an example and optional dishwasher.
It also serves as a table for three people to fit.
Elegant addition to the functionality of the kitchen space.

Bed + headboard
It’s not just an extra work space in your kitchen. It’s an elegant tool to fit and hide more items, an included trash-bin as an example and optional dishwasher.
It also serves as a table for three people to fit.
Elegant addition to the functionality of the kitchen space.

Bed + headboard
It’s not just an extra work space in your kitchen. It’s an elegant tool to fit and hide more items, an included trash-bin as an example and optional dishwasher.
It also serves as a table for three people to fit.
Elegant addition to the functionality of the kitchen space.

Bed + headboard
It’s not just an extra work space in your kitchen. It’s an elegant tool to fit and hide more items, an included trash-bin as an example and optional dishwasher.
It also serves as a table for three people to fit.
Elegant addition to the functionality of the kitchen space.

Kitchen set 19.000.000
Kitchen Set
Premium quality oak board parquet.
Smooth waxed oak boards will last longer and are easy to maintain. This is a great addition to make the already good looking interior even better.
Kitchen Set
Premium quality oak board parquet.
Smooth waxed oak boards will last longer and are easy to maintain. This is a great addition to make the already good looking interior even better.
Top Kitchen Cabinet
Premium quality oak board parquet.
Smooth waxed oak boards will last longer and are easy to maintain. This is a great addition to make the already good looking interior even better.
Top Kitchen Cabinet
Premium quality oak board parquet.
Smooth waxed oak boards will last longer and are easy to maintain. This is a great addition to make the already good looking interior even better.
Top Kitchen Cabinet
Premium quality oak board parquet.
Smooth waxed oak boards will last longer and are easy to maintain. This is a great addition to make the already good looking interior even better.
Top Kitchen Cabinet
Premium quality oak board parquet.
Smooth waxed oak boards will last longer and are easy to maintain. This is a great addition to make the already good looking interior even better.
Top kitchen cabinet 6.000.000
Kitchen Set
Premium quality oak board parquet.
Smooth waxed oak boards will last longer and are easy to maintain. This is a great addition to make the already good looking interior even better.
Kitchen Set
Premium quality oak board parquet.
Smooth waxed oak boards will last longer and are easy to maintain. This is a great addition to make the already good looking interior even better.
Top Kitchen Cabinet
Premium quality oak board parquet.
Smooth waxed oak boards will last longer and are easy to maintain. This is a great addition to make the already good looking interior even better.
Top Kitchen Cabinet
Premium quality oak board parquet.
Smooth waxed oak boards will last longer and are easy to maintain. This is a great addition to make the already good looking interior even better.
Top Kitchen Cabinet
Premium quality oak board parquet.
Smooth waxed oak boards will last longer and are easy to maintain. This is a great addition to make the already good looking interior even better.
Top Kitchen Cabinet
Premium quality oak board parquet.
Smooth waxed oak boards will last longer and are easy to maintain. This is a great addition to make the already good looking interior even better.
Wardrobe 9.000.000
Kitchen Set
Premium quality oak board parquet.
Smooth waxed oak boards will last longer and are easy to maintain. This is a great addition to make the already good looking interior even better.
Kitchen Set
Premium quality oak board parquet.
Smooth waxed oak boards will last longer and are easy to maintain. This is a great addition to make the already good looking interior even better.
Top Kitchen Cabinet
Premium quality oak board parquet.
Smooth waxed oak boards will last longer and are easy to maintain. This is a great addition to make the already good looking interior even better.
Top Kitchen Cabinet
Premium quality oak board parquet.
Smooth waxed oak boards will last longer and are easy to maintain. This is a great addition to make the already good looking interior even better.
Top Kitchen Cabinet
Premium quality oak board parquet.
Smooth waxed oak boards will last longer and are easy to maintain. This is a great addition to make the already good looking interior even better.
Top Kitchen Cabinet
Premium quality oak board parquet.
Smooth waxed oak boards will last longer and are easy to maintain. This is a great addition to make the already good looking interior even better.
Overhead Bed Cabinet 6.000.000
Kitchen Set
Premium quality oak board parquet.
Smooth waxed oak boards will last longer and are easy to maintain. This is a great addition to make the already good looking interior even better.
Kitchen Set
Premium quality oak board parquet.
Smooth waxed oak boards will last longer and are easy to maintain. This is a great addition to make the already good looking interior even better.
Top Kitchen Cabinet
Premium quality oak board parquet.
Smooth waxed oak boards will last longer and are easy to maintain. This is a great addition to make the already good looking interior even better.
Top Kitchen Cabinet
Premium quality oak board parquet.
Smooth waxed oak boards will last longer and are easy to maintain. This is a great addition to make the already good looking interior even better.
Top Kitchen Cabinet
Premium quality oak board parquet.
Smooth waxed oak boards will last longer and are easy to maintain. This is a great addition to make the already good looking interior even better.
Top Kitchen Cabinet
Premium quality oak board parquet.
Smooth waxed oak boards will last longer and are easy to maintain. This is a great addition to make the already good looking interior even better.
Terrace Deck 8.000.000
Kitchen Set
Premium quality oak board parquet.
Smooth waxed oak boards will last longer and are easy to maintain. This is a great addition to make the already good looking interior even better.
Kitchen Set
Premium quality oak board parquet.
Smooth waxed oak boards will last longer and are easy to maintain. This is a great addition to make the already good looking interior even better.
Top Kitchen Cabinet
Premium quality oak board parquet.
Smooth waxed oak boards will last longer and are easy to maintain. This is a great addition to make the already good looking interior even better.
Top Kitchen Cabinet
Premium quality oak board parquet.
Smooth waxed oak boards will last longer and are easy to maintain. This is a great addition to make the already good looking interior even better.
Top Kitchen Cabinet
Premium quality oak board parquet.
Smooth waxed oak boards will last longer and are easy to maintain. This is a great addition to make the already good looking interior even better.
Top Kitchen Cabinet
Premium quality oak board parquet.
Smooth waxed oak boards will last longer and are easy to maintain. This is a great addition to make the already good looking interior even better.
On request
Rain catchment system
Plan A

Water Heater
Plan C

Plan D
Order Total
Additional Module - Optional
Reguler mode
Facades

Plan
The outer dimensions: 40 ft x 13 ft x 12 ft (length/width/height)
Inner dimensions: 38 ft x 11.5 ft x 9 ft
Total inside area: 430 sqf
Total outside area: 516 sqf
Furniture in the plan serves as a reference. To upgrade model with several features go to upgrade section in the configurator.
Module with window
Facades

Plan
The outer dimensions: 40 ft x 13 ft x 12 ft (length/width/height)
Inner dimensions: 38 ft x 11.5 ft x 9 ft
Total inside area: 430 sqf
Total outside area: 516 sqf
Furniture in the plan serves as a reference. To upgrade model with several features go to upgrade section in the configurator.
Module with bathroom & water heater
Facades

Plan
The outer dimensions: 40 ft x 13 ft x 12 ft (length/width/height)
Inner dimensions: 38 ft x 11.5 ft x 9 ft
Total inside area: 430 sqf
Total outside area: 516 sqf
Furniture in the plan serves as a reference. To upgrade model with several features go to upgrade section in the configurator.
Interior
Exterior
FRONT FACADE
Alternative 1
To stand out even more with a slick facade design from the architect. Original architects vision of the facade adds large pieces of coated aluminium:
Each Plan has its own original design with:
- Metal elements unifying the top and the bottom metal strips.
- Metal elements around windows.
Plan A

Plan B

Plan C

Plan D

Alternative 2
To stand out even more with a slick facade design from the architect. Original architects vision of the facade adds large pieces of coated aluminium:
Each Plan has its own original design with:
- Metal elements unifying the top and the bottom metal strips.
- Metal elements around windows.
Plan A

Plan B

Plan C

Plan D

Alternative 3
To stand out even more with a slick facade design from the architect. Original architects vision of the facade adds large pieces of coated aluminium:
Each Plan has its own original design with:
- Metal elements unifying the top and the bottom metal strips.
- Metal elements around windows.
Plan A

Plan B

Plan C

Plan D

Alternative 4
To stand out even more with a slick facade design from the architect. Original architects vision of the facade adds large pieces of coated aluminium:
Each Plan has its own original design with:
- Metal elements unifying the top and the bottom metal strips.
- Metal elements around windows.
Plan A

Plan B

Plan C

Plan D

Accessories
Bed + headboard 9.000.000
Bed + headboard
It’s not just an extra work space in your kitchen. It’s an elegant tool to fit and hide more items, an included trash-bin as an example and optional dishwasher.
It also serves as a table for three people to fit.
Elegant addition to the functionality of the kitchen space.

Bed + headboard
It’s not just an extra work space in your kitchen. It’s an elegant tool to fit and hide more items, an included trash-bin as an example and optional dishwasher.
It also serves as a table for three people to fit.
Elegant addition to the functionality of the kitchen space.

Bed + headboard
It’s not just an extra work space in your kitchen. It’s an elegant tool to fit and hide more items, an included trash-bin as an example and optional dishwasher.
It also serves as a table for three people to fit.
Elegant addition to the functionality of the kitchen space.

Bed + headboard
It’s not just an extra work space in your kitchen. It’s an elegant tool to fit and hide more items, an included trash-bin as an example and optional dishwasher.
It also serves as a table for three people to fit.
Elegant addition to the functionality of the kitchen space.

Bed + headboard
It’s not just an extra work space in your kitchen. It’s an elegant tool to fit and hide more items, an included trash-bin as an example and optional dishwasher.
It also serves as a table for three people to fit.
Elegant addition to the functionality of the kitchen space.

Bed + headboard
It’s not just an extra work space in your kitchen. It’s an elegant tool to fit and hide more items, an included trash-bin as an example and optional dishwasher.
It also serves as a table for three people to fit.
Elegant addition to the functionality of the kitchen space.

Kitchen set 19.000.000
Kitchen Set
Premium quality oak board parquet.
Smooth waxed oak boards will last longer and are easy to maintain. This is a great addition to make the already good looking interior even better.
Kitchen Set
Premium quality oak board parquet.
Smooth waxed oak boards will last longer and are easy to maintain. This is a great addition to make the already good looking interior even better.
Top Kitchen Cabinet
Premium quality oak board parquet.
Smooth waxed oak boards will last longer and are easy to maintain. This is a great addition to make the already good looking interior even better.
Top Kitchen Cabinet
Premium quality oak board parquet.
Smooth waxed oak boards will last longer and are easy to maintain. This is a great addition to make the already good looking interior even better.
Top Kitchen Cabinet
Premium quality oak board parquet.
Smooth waxed oak boards will last longer and are easy to maintain. This is a great addition to make the already good looking interior even better.
Top Kitchen Cabinet
Premium quality oak board parquet.
Smooth waxed oak boards will last longer and are easy to maintain. This is a great addition to make the already good looking interior even better.
Top kitchen cabinet 6.000.000
Kitchen Set
Premium quality oak board parquet.
Smooth waxed oak boards will last longer and are easy to maintain. This is a great addition to make the already good looking interior even better.
Kitchen Set
Premium quality oak board parquet.
Smooth waxed oak boards will last longer and are easy to maintain. This is a great addition to make the already good looking interior even better.
Top Kitchen Cabinet
Premium quality oak board parquet.
Smooth waxed oak boards will last longer and are easy to maintain. This is a great addition to make the already good looking interior even better.
Top Kitchen Cabinet
Premium quality oak board parquet.
Smooth waxed oak boards will last longer and are easy to maintain. This is a great addition to make the already good looking interior even better.
Top Kitchen Cabinet
Premium quality oak board parquet.
Smooth waxed oak boards will last longer and are easy to maintain. This is a great addition to make the already good looking interior even better.
Top Kitchen Cabinet
Premium quality oak board parquet.
Smooth waxed oak boards will last longer and are easy to maintain. This is a great addition to make the already good looking interior even better.
Wardrobe 9.000.000
Kitchen Set
Premium quality oak board parquet.
Smooth waxed oak boards will last longer and are easy to maintain. This is a great addition to make the already good looking interior even better.
Kitchen Set
Premium quality oak board parquet.
Smooth waxed oak boards will last longer and are easy to maintain. This is a great addition to make the already good looking interior even better.
Top Kitchen Cabinet
Premium quality oak board parquet.
Smooth waxed oak boards will last longer and are easy to maintain. This is a great addition to make the already good looking interior even better.
Top Kitchen Cabinet
Premium quality oak board parquet.
Smooth waxed oak boards will last longer and are easy to maintain. This is a great addition to make the already good looking interior even better.
Top Kitchen Cabinet
Premium quality oak board parquet.
Smooth waxed oak boards will last longer and are easy to maintain. This is a great addition to make the already good looking interior even better.
Top Kitchen Cabinet
Premium quality oak board parquet.
Smooth waxed oak boards will last longer and are easy to maintain. This is a great addition to make the already good looking interior even better.
Overhead Bed Cabinet 6.000.000
Kitchen Set
Premium quality oak board parquet.
Smooth waxed oak boards will last longer and are easy to maintain. This is a great addition to make the already good looking interior even better.
Kitchen Set
Premium quality oak board parquet.
Smooth waxed oak boards will last longer and are easy to maintain. This is a great addition to make the already good looking interior even better.
Top Kitchen Cabinet
Premium quality oak board parquet.
Smooth waxed oak boards will last longer and are easy to maintain. This is a great addition to make the already good looking interior even better.
Top Kitchen Cabinet
Premium quality oak board parquet.
Smooth waxed oak boards will last longer and are easy to maintain. This is a great addition to make the already good looking interior even better.
Top Kitchen Cabinet
Premium quality oak board parquet.
Smooth waxed oak boards will last longer and are easy to maintain. This is a great addition to make the already good looking interior even better.
Top Kitchen Cabinet
Premium quality oak board parquet.
Smooth waxed oak boards will last longer and are easy to maintain. This is a great addition to make the already good looking interior even better.
Terrace Deck 8.000.000
Kitchen Set
Premium quality oak board parquet.
Smooth waxed oak boards will last longer and are easy to maintain. This is a great addition to make the already good looking interior even better.
Kitchen Set
Premium quality oak board parquet.
Smooth waxed oak boards will last longer and are easy to maintain. This is a great addition to make the already good looking interior even better.
Top Kitchen Cabinet
Premium quality oak board parquet.
Smooth waxed oak boards will last longer and are easy to maintain. This is a great addition to make the already good looking interior even better.
Top Kitchen Cabinet
Premium quality oak board parquet.
Smooth waxed oak boards will last longer and are easy to maintain. This is a great addition to make the already good looking interior even better.
Top Kitchen Cabinet
Premium quality oak board parquet.
Smooth waxed oak boards will last longer and are easy to maintain. This is a great addition to make the already good looking interior even better.
Top Kitchen Cabinet
Premium quality oak board parquet.
Smooth waxed oak boards will last longer and are easy to maintain. This is a great addition to make the already good looking interior even better.
On request
Rain catchment system
Plan A

Water Heater
Plan C

Plan D
Order Total
Additional Module - Optional
Reguler mode
Facades

Plan
The outer dimensions: 40 ft x 13 ft x 12 ft (length/width/height)
Inner dimensions: 38 ft x 11.5 ft x 9 ft
Total inside area: 430 sqf
Total outside area: 516 sqf
Furniture in the plan serves as a reference. To upgrade model with several features go to upgrade section in the configurator.
Module with window
Facades

Plan
The outer dimensions: 40 ft x 13 ft x 12 ft (length/width/height)
Inner dimensions: 38 ft x 11.5 ft x 9 ft
Total inside area: 430 sqf
Total outside area: 516 sqf
Furniture in the plan serves as a reference. To upgrade model with several features go to upgrade section in the configurator.
Module with bathroom & water heater
Facades

Plan
The outer dimensions: 40 ft x 13 ft x 12 ft (length/width/height)
Inner dimensions: 38 ft x 11.5 ft x 9 ft
Total inside area: 430 sqf
Total outside area: 516 sqf
Furniture in the plan serves as a reference. To upgrade model with several features go to upgrade section in the configurator.
Interior
Exterior
FRONT FACADE
Alternative 1
To stand out even more with a slick facade design from the architect. Original architects vision of the facade adds large pieces of coated aluminium:
Each Plan has its own original design with:
- Metal elements unifying the top and the bottom metal strips.
- Metal elements around windows.
Plan A

Plan B

Plan C

Plan D

Alternative 2
To stand out even more with a slick facade design from the architect. Original architects vision of the facade adds large pieces of coated aluminium:
Each Plan has its own original design with:
- Metal elements unifying the top and the bottom metal strips.
- Metal elements around windows.
Plan A

Plan B

Plan C

Plan D

Alternative 3
To stand out even more with a slick facade design from the architect. Original architects vision of the facade adds large pieces of coated aluminium:
Each Plan has its own original design with:
- Metal elements unifying the top and the bottom metal strips.
- Metal elements around windows.
Plan A

Plan B

Plan C

Plan D

Alternative 4
To stand out even more with a slick facade design from the architect. Original architects vision of the facade adds large pieces of coated aluminium:
Each Plan has its own original design with:
- Metal elements unifying the top and the bottom metal strips.
- Metal elements around windows.
Plan A

Plan B

Plan C

Plan D

Accessories
Bed + headboard 9.000.000
Bed + headboard
It’s not just an extra work space in your kitchen. It’s an elegant tool to fit and hide more items, an included trash-bin as an example and optional dishwasher.
It also serves as a table for three people to fit.
Elegant addition to the functionality of the kitchen space.

Bed + headboard
It’s not just an extra work space in your kitchen. It’s an elegant tool to fit and hide more items, an included trash-bin as an example and optional dishwasher.
It also serves as a table for three people to fit.
Elegant addition to the functionality of the kitchen space.

Bed + headboard
It’s not just an extra work space in your kitchen. It’s an elegant tool to fit and hide more items, an included trash-bin as an example and optional dishwasher.
It also serves as a table for three people to fit.
Elegant addition to the functionality of the kitchen space.

Bed + headboard
It’s not just an extra work space in your kitchen. It’s an elegant tool to fit and hide more items, an included trash-bin as an example and optional dishwasher.
It also serves as a table for three people to fit.
Elegant addition to the functionality of the kitchen space.

Bed + headboard
It’s not just an extra work space in your kitchen. It’s an elegant tool to fit and hide more items, an included trash-bin as an example and optional dishwasher.
It also serves as a table for three people to fit.
Elegant addition to the functionality of the kitchen space.

Bed + headboard
It’s not just an extra work space in your kitchen. It’s an elegant tool to fit and hide more items, an included trash-bin as an example and optional dishwasher.
It also serves as a table for three people to fit.
Elegant addition to the functionality of the kitchen space.

Kitchen set 19.000.000
Kitchen Set
Premium quality oak board parquet.
Smooth waxed oak boards will last longer and are easy to maintain. This is a great addition to make the already good looking interior even better.
Kitchen Set
Premium quality oak board parquet.
Smooth waxed oak boards will last longer and are easy to maintain. This is a great addition to make the already good looking interior even better.
Top Kitchen Cabinet
Premium quality oak board parquet.
Smooth waxed oak boards will last longer and are easy to maintain. This is a great addition to make the already good looking interior even better.
Top Kitchen Cabinet
Premium quality oak board parquet.
Smooth waxed oak boards will last longer and are easy to maintain. This is a great addition to make the already good looking interior even better.
Top Kitchen Cabinet
Premium quality oak board parquet.
Smooth waxed oak boards will last longer and are easy to maintain. This is a great addition to make the already good looking interior even better.
Top Kitchen Cabinet
Premium quality oak board parquet.
Smooth waxed oak boards will last longer and are easy to maintain. This is a great addition to make the already good looking interior even better.
Top kitchen cabinet 6.000.000
Kitchen Set
Premium quality oak board parquet.
Smooth waxed oak boards will last longer and are easy to maintain. This is a great addition to make the already good looking interior even better.
Kitchen Set
Premium quality oak board parquet.
Smooth waxed oak boards will last longer and are easy to maintain. This is a great addition to make the already good looking interior even better.
Top Kitchen Cabinet
Premium quality oak board parquet.
Smooth waxed oak boards will last longer and are easy to maintain. This is a great addition to make the already good looking interior even better.
Top Kitchen Cabinet
Premium quality oak board parquet.
Smooth waxed oak boards will last longer and are easy to maintain. This is a great addition to make the already good looking interior even better.
Top Kitchen Cabinet
Premium quality oak board parquet.
Smooth waxed oak boards will last longer and are easy to maintain. This is a great addition to make the already good looking interior even better.
Top Kitchen Cabinet
Premium quality oak board parquet.
Smooth waxed oak boards will last longer and are easy to maintain. This is a great addition to make the already good looking interior even better.
Wardrobe 9.000.000
Kitchen Set
Premium quality oak board parquet.
Smooth waxed oak boards will last longer and are easy to maintain. This is a great addition to make the already good looking interior even better.
Kitchen Set
Premium quality oak board parquet.
Smooth waxed oak boards will last longer and are easy to maintain. This is a great addition to make the already good looking interior even better.
Top Kitchen Cabinet
Premium quality oak board parquet.
Smooth waxed oak boards will last longer and are easy to maintain. This is a great addition to make the already good looking interior even better.
Top Kitchen Cabinet
Premium quality oak board parquet.
Smooth waxed oak boards will last longer and are easy to maintain. This is a great addition to make the already good looking interior even better.
Top Kitchen Cabinet
Premium quality oak board parquet.
Smooth waxed oak boards will last longer and are easy to maintain. This is a great addition to make the already good looking interior even better.
Top Kitchen Cabinet
Premium quality oak board parquet.
Smooth waxed oak boards will last longer and are easy to maintain. This is a great addition to make the already good looking interior even better.
Overhead Bed Cabinet 6.000.000
Kitchen Set
Premium quality oak board parquet.
Smooth waxed oak boards will last longer and are easy to maintain. This is a great addition to make the already good looking interior even better.
Kitchen Set
Premium quality oak board parquet.
Smooth waxed oak boards will last longer and are easy to maintain. This is a great addition to make the already good looking interior even better.
Top Kitchen Cabinet
Premium quality oak board parquet.
Smooth waxed oak boards will last longer and are easy to maintain. This is a great addition to make the already good looking interior even better.
Top Kitchen Cabinet
Premium quality oak board parquet.
Smooth waxed oak boards will last longer and are easy to maintain. This is a great addition to make the already good looking interior even better.
Top Kitchen Cabinet
Premium quality oak board parquet.
Smooth waxed oak boards will last longer and are easy to maintain. This is a great addition to make the already good looking interior even better.
Top Kitchen Cabinet
Premium quality oak board parquet.
Smooth waxed oak boards will last longer and are easy to maintain. This is a great addition to make the already good looking interior even better.
Terrace Deck 8.000.000
Kitchen Set
Premium quality oak board parquet.
Smooth waxed oak boards will last longer and are easy to maintain. This is a great addition to make the already good looking interior even better.
Kitchen Set
Premium quality oak board parquet.
Smooth waxed oak boards will last longer and are easy to maintain. This is a great addition to make the already good looking interior even better.
Top Kitchen Cabinet
Premium quality oak board parquet.
Smooth waxed oak boards will last longer and are easy to maintain. This is a great addition to make the already good looking interior even better.
Top Kitchen Cabinet
Premium quality oak board parquet.
Smooth waxed oak boards will last longer and are easy to maintain. This is a great addition to make the already good looking interior even better.
Top Kitchen Cabinet
Premium quality oak board parquet.
Smooth waxed oak boards will last longer and are easy to maintain. This is a great addition to make the already good looking interior even better.
Top Kitchen Cabinet
Premium quality oak board parquet.
Smooth waxed oak boards will last longer and are easy to maintain. This is a great addition to make the already good looking interior even better.
On request
Rain catchment system
Plan A

Water Heater
Plan C

Plan D
Order Total
Additional Module - Optional
Reguler mode
Facades

Plan
The outer dimensions: 40 ft x 13 ft x 12 ft (length/width/height)
Inner dimensions: 38 ft x 11.5 ft x 9 ft
Total inside area: 430 sqf
Total outside area: 516 sqf
Furniture in the plan serves as a reference. To upgrade model with several features go to upgrade section in the configurator.
Module with window
Facades

Plan
The outer dimensions: 40 ft x 13 ft x 12 ft (length/width/height)
Inner dimensions: 38 ft x 11.5 ft x 9 ft
Total inside area: 430 sqf
Total outside area: 516 sqf
Furniture in the plan serves as a reference. To upgrade model with several features go to upgrade section in the configurator.
Module with bathroom & water heater
Facades

Plan
The outer dimensions: 40 ft x 13 ft x 12 ft (length/width/height)
Inner dimensions: 38 ft x 11.5 ft x 9 ft
Total inside area: 430 sqf
Total outside area: 516 sqf
Furniture in the plan serves as a reference. To upgrade model with several features go to upgrade section in the configurator.
Interior
Exterior
FRONT FACADE
Alternative 1
To stand out even more with a slick facade design from the architect. Original architects vision of the facade adds large pieces of coated aluminium:
Each Plan has its own original design with:
- Metal elements unifying the top and the bottom metal strips.
- Metal elements around windows.
Plan A

Plan B

Plan C

Plan D

Alternative 2
To stand out even more with a slick facade design from the architect. Original architects vision of the facade adds large pieces of coated aluminium:
Each Plan has its own original design with:
- Metal elements unifying the top and the bottom metal strips.
- Metal elements around windows.
Plan A

Plan B

Plan C

Plan D

Alternative 3
To stand out even more with a slick facade design from the architect. Original architects vision of the facade adds large pieces of coated aluminium:
Each Plan has its own original design with:
- Metal elements unifying the top and the bottom metal strips.
- Metal elements around windows.
Plan A

Plan B

Plan C

Plan D

Alternative 4
To stand out even more with a slick facade design from the architect. Original architects vision of the facade adds large pieces of coated aluminium:
Each Plan has its own original design with:
- Metal elements unifying the top and the bottom metal strips.
- Metal elements around windows.
Plan A

Plan B

Plan C

Plan D

Accessories
Bed + headboard 7.500.000
Bed + headboard
It’s not just an extra work space in your kitchen. It’s an elegant tool to fit and hide more items, an included trash-bin as an example and optional dishwasher.
It also serves as a table for three people to fit.
Elegant addition to the functionality of the kitchen space.

Bed + headboard
It’s not just an extra work space in your kitchen. It’s an elegant tool to fit and hide more items, an included trash-bin as an example and optional dishwasher.
It also serves as a table for three people to fit.
Elegant addition to the functionality of the kitchen space.

Bed + headboard
It’s not just an extra work space in your kitchen. It’s an elegant tool to fit and hide more items, an included trash-bin as an example and optional dishwasher.
It also serves as a table for three people to fit.
Elegant addition to the functionality of the kitchen space.

Bed + headboard
It’s not just an extra work space in your kitchen. It’s an elegant tool to fit and hide more items, an included trash-bin as an example and optional dishwasher.
It also serves as a table for three people to fit.
Elegant addition to the functionality of the kitchen space.

Bed + headboard
It’s not just an extra work space in your kitchen. It’s an elegant tool to fit and hide more items, an included trash-bin as an example and optional dishwasher.
It also serves as a table for three people to fit.
Elegant addition to the functionality of the kitchen space.

Bed + headboard
It’s not just an extra work space in your kitchen. It’s an elegant tool to fit and hide more items, an included trash-bin as an example and optional dishwasher.
It also serves as a table for three people to fit.
Elegant addition to the functionality of the kitchen space.

Kitchen set 19.000.000
Kitchen Set
Premium quality oak board parquet.
Smooth waxed oak boards will last longer and are easy to maintain. This is a great addition to make the already good looking interior even better.
Kitchen Set
Premium quality oak board parquet.
Smooth waxed oak boards will last longer and are easy to maintain. This is a great addition to make the already good looking interior even better.
Top Kitchen Cabinet
Premium quality oak board parquet.
Smooth waxed oak boards will last longer and are easy to maintain. This is a great addition to make the already good looking interior even better.
Top Kitchen Cabinet
Premium quality oak board parquet.
Smooth waxed oak boards will last longer and are easy to maintain. This is a great addition to make the already good looking interior even better.
Top Kitchen Cabinet
Premium quality oak board parquet.
Smooth waxed oak boards will last longer and are easy to maintain. This is a great addition to make the already good looking interior even better.
Top Kitchen Cabinet
Premium quality oak board parquet.
Smooth waxed oak boards will last longer and are easy to maintain. This is a great addition to make the already good looking interior even better.
Top kitchen cabinet 6.000.000
Kitchen Set
Premium quality oak board parquet.
Smooth waxed oak boards will last longer and are easy to maintain. This is a great addition to make the already good looking interior even better.
Kitchen Set
Premium quality oak board parquet.
Smooth waxed oak boards will last longer and are easy to maintain. This is a great addition to make the already good looking interior even better.
Top Kitchen Cabinet
Premium quality oak board parquet.
Smooth waxed oak boards will last longer and are easy to maintain. This is a great addition to make the already good looking interior even better.
Top Kitchen Cabinet
Premium quality oak board parquet.
Smooth waxed oak boards will last longer and are easy to maintain. This is a great addition to make the already good looking interior even better.
Top Kitchen Cabinet
Premium quality oak board parquet.
Smooth waxed oak boards will last longer and are easy to maintain. This is a great addition to make the already good looking interior even better.
Top Kitchen Cabinet
Premium quality oak board parquet.
Smooth waxed oak boards will last longer and are easy to maintain. This is a great addition to make the already good looking interior even better.
Wardrobe 7.500.000
Kitchen Set
Premium quality oak board parquet.
Smooth waxed oak boards will last longer and are easy to maintain. This is a great addition to make the already good looking interior even better.
Kitchen Set
Premium quality oak board parquet.
Smooth waxed oak boards will last longer and are easy to maintain. This is a great addition to make the already good looking interior even better.
Top Kitchen Cabinet
Premium quality oak board parquet.
Smooth waxed oak boards will last longer and are easy to maintain. This is a great addition to make the already good looking interior even better.
Top Kitchen Cabinet
Premium quality oak board parquet.
Smooth waxed oak boards will last longer and are easy to maintain. This is a great addition to make the already good looking interior even better.
Top Kitchen Cabinet
Premium quality oak board parquet.
Smooth waxed oak boards will last longer and are easy to maintain. This is a great addition to make the already good looking interior even better.
Top Kitchen Cabinet
Premium quality oak board parquet.
Smooth waxed oak boards will last longer and are easy to maintain. This is a great addition to make the already good looking interior even better.
Overhead Bed Cabinet 6.000.000
Kitchen Set
Premium quality oak board parquet.
Smooth waxed oak boards will last longer and are easy to maintain. This is a great addition to make the already good looking interior even better.
Kitchen Set
Premium quality oak board parquet.
Smooth waxed oak boards will last longer and are easy to maintain. This is a great addition to make the already good looking interior even better.
Top Kitchen Cabinet
Premium quality oak board parquet.
Smooth waxed oak boards will last longer and are easy to maintain. This is a great addition to make the already good looking interior even better.
Top Kitchen Cabinet
Premium quality oak board parquet.
Smooth waxed oak boards will last longer and are easy to maintain. This is a great addition to make the already good looking interior even better.
Top Kitchen Cabinet
Premium quality oak board parquet.
Smooth waxed oak boards will last longer and are easy to maintain. This is a great addition to make the already good looking interior even better.
Top Kitchen Cabinet
Premium quality oak board parquet.
Smooth waxed oak boards will last longer and are easy to maintain. This is a great addition to make the already good looking interior even better.
Terrace Deck 8.000.000
Kitchen Set
Premium quality oak board parquet.
Smooth waxed oak boards will last longer and are easy to maintain. This is a great addition to make the already good looking interior even better.
Kitchen Set
Premium quality oak board parquet.
Smooth waxed oak boards will last longer and are easy to maintain. This is a great addition to make the already good looking interior even better.
Top Kitchen Cabinet
Premium quality oak board parquet.
Smooth waxed oak boards will last longer and are easy to maintain. This is a great addition to make the already good looking interior even better.
Top Kitchen Cabinet
Premium quality oak board parquet.
Smooth waxed oak boards will last longer and are easy to maintain. This is a great addition to make the already good looking interior even better.
Top Kitchen Cabinet
Premium quality oak board parquet.
Smooth waxed oak boards will last longer and are easy to maintain. This is a great addition to make the already good looking interior even better.
Top Kitchen Cabinet
Premium quality oak board parquet.
Smooth waxed oak boards will last longer and are easy to maintain. This is a great addition to make the already good looking interior even better.
On request
Rain catchment system
Plan A

Water Heater
Plan C

Plan D




